Детали проекта
Автомобильная мойка самообслуживания
Вид строительства: Новое строительство.
Адрес объекта: г. Владимир, ул. Нижняя Дуброва, в районе д. 41.
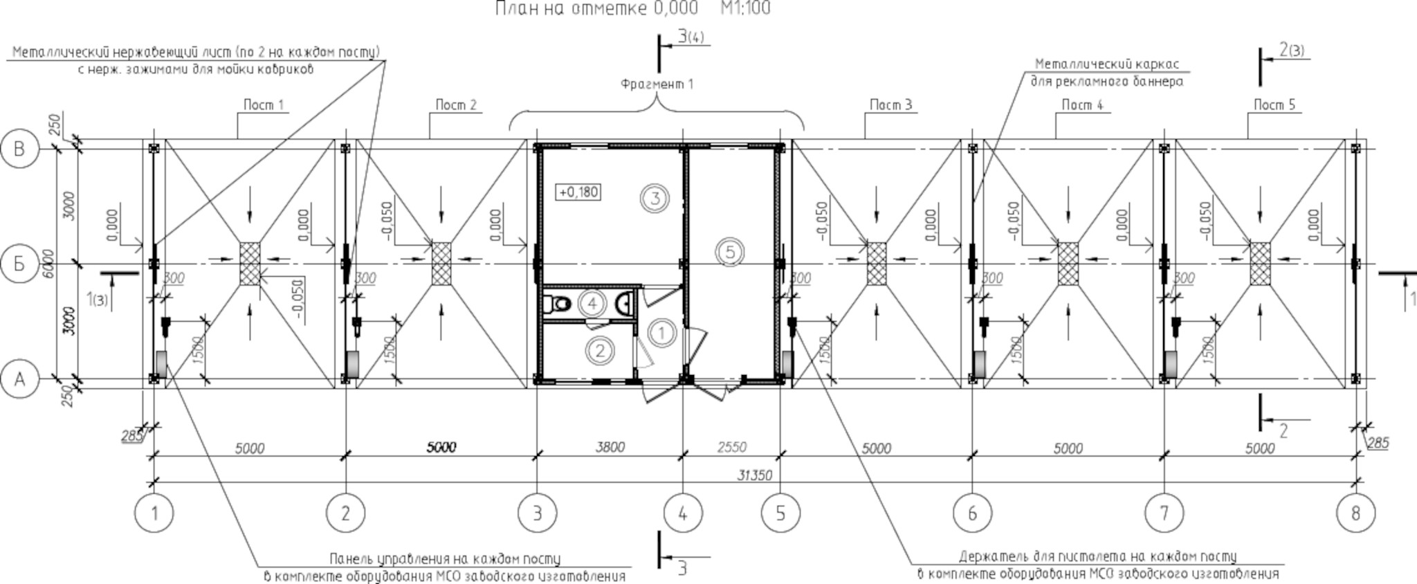
Описание объекта: Назначение – оказание услуг по мойке автомобилей. Площадь земельного участка – 0,0723 га. Здание пятисекционное: 4 секции — для автомойки; 1 секция — офисная. Этажность – одноэтажное.
Общая площадь объекта: 207,5 кв.м
Цель работ
Разработка рабочей документации на строительство автомобильной мойки самообслуживания.
Результат работ
Выполнен комплект проектной документации:
- Раздел 1 «Пояснительная записка»;
- Раздел 2 «Схема планировочной организации земельного участка»;
- Раздел 3 «Архитектурные решения»;
- Раздел 4 «Конструктивные и объемно-планировочные решения»;
- Раздел 5 «Сведения об инженерном оборудовании, о сетях инженерно-технического обеспечения, перечень инженерно-технических мероприятий, содержание технологических решений»: а) подраздел 5.1 «Система электроснабжения»; б) подраздел 5.2 «Система водоснабжения»; в) подраздел 5.4 «Отопление, вентиляция и кондиционирование воздуха, тепловые сети»;
- Раздел 6 «Проект организации строительства»;
- Раздел 8 «Перечень мероприятий по охране окружающей среды»;
- Раздел 10 «Мероприятия по обеспечению доступа инвалидов».


















