Детали проекта
Выполнение проектных работ по восстановлению после пожара производственно-складского корпуса №451
Вид строительства: Восстановление после пожара.
Адрес объекта: Московская область, г. Видное, тер. Северная промзона
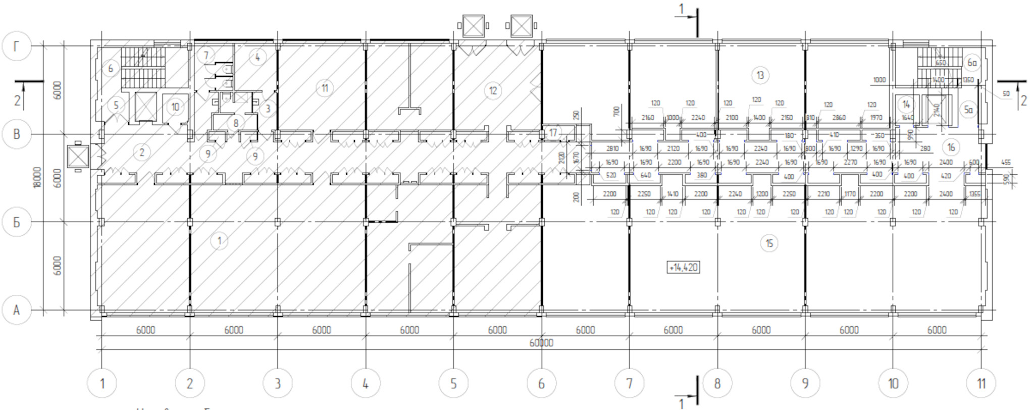
Описание объекта: Здание имеет каркасную конструктивную систему с поперечным расположением ригелей с ячейкой колонн 6 х 6 метров. Наружные стены – навесные стеновые панели. Пространственная жесткость и устойчивость обеспечиваются совместной работой вертикальных конструкций, жестких дисков перекрытий и покрытия и ядер жесткости лестничных клеток, расположенных в торцах здания.
Цель работ
Выполнить работы по разработке проектно-сметной документации.
Результат работ
В ходе проектирования выполнены расчеты несущих конструкций, разработаны планы и разрезы здания, а также схемы усиления поврежденных пожаром конструкций, несущая способность которых недостаточна для дальнейшей безопасной эксплуатации здания.
Усиление конструкций — процесс разработки проектной документации, предусматривающий мероприятия по разработке технологии и последовательности работ по усилению или замене железобетонных, металлических и каменных конструкций, а также мероприятия по устройству дополнительных разгрузочных конструкций для уменьшения нагрузок на существующие конструкции.
В данном проекте было произведено усиление колонн металлической обоймой из уголков и пластин.


















