Детали проекта
Главный медиацентр «Сириус»
Вид строительства: Реконструкция
Адрес объекта: Краснодарский край, г. Сочи, Адлерский район, Олимпийский проспект, д. 1.
Описание объекта: Главный медиацентр «Сириус» создан в 2015 году на базе Олимпийского парка. Расположен на самом юге Краснодарского края, в образованном в феврале 2020 года посёлке городского типа Сириус.
Цель работ
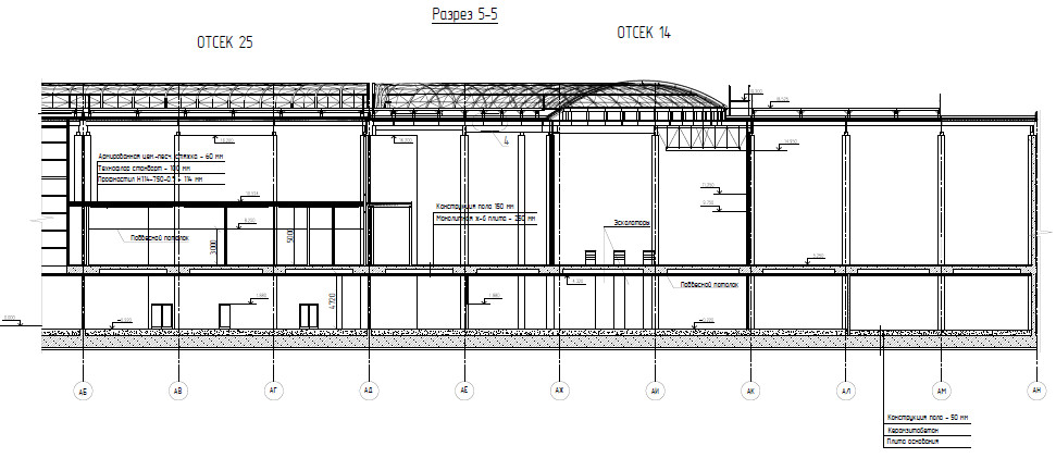
Определить фактическое техническое состояние несущих конструкций здания – колонн, плит перекрытия, конструкций покрытия, фахверковых стоек, балок, ригелей, фундаментных плит и т.д. Определить фактическую несущую способность строительных конструкций. Разработать рекомендации по реконструкции отдельных отсеков здания.
Результат работ
В ходе разработки проекта выполнены расчеты несущих конструкций и грунтов оснований, разработаны чертежи, достаточные для реконструкции.
По результатам расчетов сделаны выводы о несущей способности всех несущих элементов и их остаточном запасе прочности. Разработаны рекомендации по реконструкции здания.


















